- Woonoppervlakte
- Circa 199 m²
- Perceeloppervlakte
- Circa 617 m²
- Bouwjaar
- Gebouwd in 1963
- Aantal kamers
- 7 kamers (5 slaapkamers)
Unieke kans! In het centrum van Reusel ligt dit karaktervolle en ruime vrijstaande woonhuis op een riant perceel van maar liefst 617 m2. Met een woonoppervlakte van circa 200 m2, vijf slaapkamers, twee badkamers én een rijke historie als voormalig CVB-bank, biedt deze woning ongekend veel ruimte en mogelijkheden voor gezinnen, thuiswerkers of praktijk aan huis.
Wonen met allure
Deze woning is in 2012 royaal uitgebouwd en opgebouwd, wat resulteert in een zeer ruime indeling. De voormalige bankfunctie zie je subtiel terug in het robuuste karakter van het pand. Tegelijkertijd is het geheel getransformeerd tot een comfortabel, warm familiehuis.
Indeling:
Begane grond:
Ruime entree met imposante hal. Sfeervolle woonkamer met veel lichtinval en houtkachel. Open woonkeuken met uitzicht op de tuin. Praktische bijkeuken en berging.
1e verdieping:
Vijf volwaardige slaapkamers, ideaal voor een groot gezin of werken aan huis. Twee complete badkamers voor optimaal comfort en privacy. 1 badkamer is vernieuwd in 2020.
2e verdieping:
Royale bergzolder met opstelling van 1 van de cv-ketels.
Buitenleven
De royale tuin rondom de woning biedt volop privacy, speelruimte en mogelijkheden tot ontspanning. Geniet van de zon op het terras, tuinier naar hartenlust of creëer jouw eigen groene oase midden in het dorp.
Locatie
Gelegen aan een rustige straat, maar op loopafstand van winkels, scholen en voorzieningen. Vlassert 34 combineert de rust van vrijstaand wonen met de levendigheid en gemakken van het centrum van Reusel.
Samengevat:
- Vrijstaand woonhuis op toplocatie
- Voormalig bankgebouw, nu riant woonhuis
- 5 slaapkamers en 2 badkamers
- 2 cv-combiketels, warmtepomp, airco's
- Perceel van 617 m2
- Woonoppervlakte ca. 200 m2
- Centrale ligging in Reusel
- Volop ruimte, karakter en mogelijkheden
Benieuwd naar de ruimte, charme en potentie van Vlassert 34? Plan snel een bezichtiging en laat je verrassen door alles wat deze woning te bieden heeft!
Overdracht
- Vraagprijs
- € 775.000 k.k.
- Status
- Ingetrokken
- Aanvaarding
- In overleg
Bouw
- Object type
- Herenhuis, vrijstaande woning
- Soort bouw
- Bestaande bouw
- Bouwjaar
- 1963
- Soort dak
- Zadeldak bedekt met pannen
Oppervlakte en inhoud
- Woonoppervlakte
- 199 m²
- Perceeloppervlakte
- 617 m²
- Inhoud
- 666 m³
- Overige inpandige ruimte
- 7 m²
- Externe bergruimte
- 31 m²
- Gebouwgeb. buitenruimte
- 2 m²
Indeling
- Aantal kamers
- 7 kamers (5 slaapkamers)
- Aantal badkamers
- 2 badkamers
- Badkamervoorzieningen
- Toilet, dubbele wastafel, inloopdouche ligbad, toilet, inloopdouche, vloerverwarming
- Aantal woonlagen
- 3 woonlagen
- Voorzieningen
- Mechanische ventilatie, airconditioning
Energie
- Energielabel
- B
- Energielabel registratie
- 20-01-2025
- Isolatie
- Dakisolatie, muurisolatie, vloerisolatie, dubbel glas
- Verwarming
- Cv-ketel, warmtepomp, houtkachel
- Warm water
- Cv-ketel
- Cv ketel
- Remeha combiketel gas gestookt uit 2021 (eigendom)
Buitenruimte
- Ligging
- Aan rustige weg, in centrum, in woonwijk
- Balkon / dakterras
- Balkon
- Tuin
- Achtertuin, voortuin, zijtuin
- Afmetingen achtertuin
- 269 m² (12.5 meter diep en 21.5 meter breed)
- ligging tuin
- Gelegen op het oosten en bereikbaar via achterom
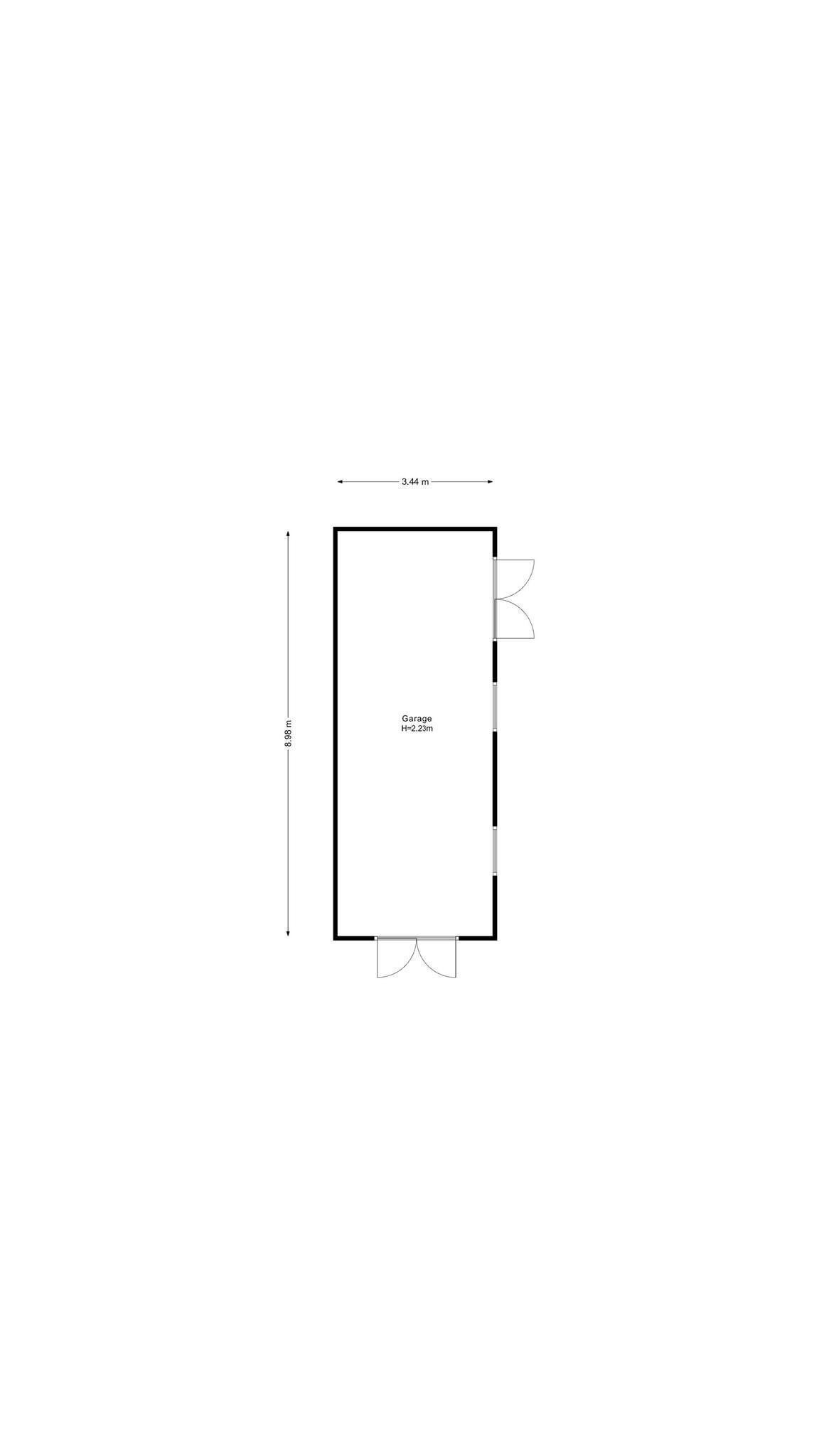
Garage
- Soort garage
- Vrijstaand hout
- Capaciteit
- 1 auto
- Voorzieningen
- Elektra
Parkeergelegenheid
- Soort parkeergelegenheid
- Op eigen terrein
Energieverbruik in Reusel
Energielabel deze woning
Energielabel B
Publicatie energielabel: 20-01-2025
Stroomverbruik per jaar
(Gemiddelde vrijstaande woning in Reusel)
Gasverbruik per jaar
(Gemiddelde vrijstaande woning in Reusel)
* Cijfers zijn afkomstig van het CBS en bedoeld als indicatie en kunnen verschillen voor deze woning
Indicatie hypotheeklasten
Eigen inleg:
Spaargeld / overwaarde
Rente:
Laagste 10-jaars rente
Laagste 10-jaars rente
2,75% - Centraal Beheer Groen... - NHG
3,04% - Argenta Groen Hypothee... - 80%
Laagste 20-jaars rente
3,18% - Argenta Groen Hypothee... - NHG
3,39% - Argenta Groen Hypothee... - 80%
Laagste 30-jaars rente
3,35% - Argenta Groen Hypothee... - NHG
3,56% - Argenta Groen Hypothee... - 80%
Hypotheek:
Bruto maandlasten: € 0 p/m
Netto maandlasten: € 0 p/m
Hoe berekenen we dit?
Het rentepercentage is gebaseerd op de laagste 10 jaars vaste rente voor één hypotheekdeel. De vermelde rente (3.04% zonder NHG) is gecontroleerd op 30-10-2025. Deze berekening is gebaseerd op een annuïteitenhypotheek die volledig wordt afgelost, waarbij de maandlasten gedurende de gehele looptijd gelijk blijven. De werkelijke rente en netto maandlasten kunnen variëren, afhankelijk van uw persoonlijke situatie en de hypotheekverstrekker. Raadpleeg een financieel adviseur voor een nauwkeurige berekening en advies. Aan deze berekening kunnen geen rechten worden ontleend; het dient enkel als indicatie.
Documentatie
Kadastrale kaart
Leefomgeving
Kadaster
Brochure
Plattegronden PDF
WOZ waarderapport
BAG uittreksel
Bekijk onze website
Bezichtiging
Bod uitbrengen
Waardebepaling
Zoekopdracht
Alles downloaden
Zonnegrenzen bekijken
Op de kaart
Inwoners in Reusel
Cijfers voor postcodegebied 5541
- Totaal aantal inwoners
- 8705 inwoners
- Mannen
- 51%
- Vrouwen
- 49%
Inwoners in Reusel
Cijfers voor postcodegebied 5541
- tot 15 jaar
- 17%
- 15 tot 25 jaar
- 10%
- 25 tot 35 jaar
- 25%
- 45 tot 65 jaar
- 27%
- 65 en ouder
- 21%
Huishoudens in Reusel
Cijfers voor postcodegebied 5541
- Eenpersoons zonder kinderen
- 29%
- Meerpersoons zonder kinderen
- 34%
- Huishoudens zonder kinderen
- 63%
Huishoudens in Reusel
Cijfers voor postcodegebied 5541
- Huishoudens met één kind
- 5%
- Huishoudens met meerdere kinderen
- 31%
- Huishoudens met kinderen
- 36%
Woningen in Reusel
Cijfers voor postcodegebied 5541
- Woningen voor 1945
- 7%
- Woningen tussen 1945 en 1965
- 15%
- Woningen tussen 1965 en 1975
- 17%
- Woningen tussen 1975 en 1985
- 17%
- Woningen tussen 1985 en 1995
- 16%
Woningen in Reusel
Cijfers voor postcodegebied 5541
- Woningen tussen 1995 en 2005
- 10%
- Woningen tussen 2005 en 2015
- 13%
- Woningen na 2015
- 4%
- Huurwoningen
- 20%
- Koopwoningen
- 80%
Overige in Reusel
Cijfers voor postcodegebied 5541
- Gemiddelde WOZ waarde
- € 287.000,-
- Personen onder de 65 met uitkering
- 5%
Overige in Reusel
Cijfers voor postcodegebied 5541
- Adressen per km²
- 783
- Stedelijkheid (schaal 1 op 5)
- 40%
Korte feiten over Reusel
Reusel (Brabants: Reuzel) is de hoofdplaats van de gemeente Reusel-De Mierden, in de Nederlandse provincie Noord-Brabant. Reusel is gelegen in regio de Kempen. Dichtstbijzijnde grote steden zijn Turnhout, Tilburg en Eindhoven. Reusel is een van de Acht zaligheden.
Ben Straatman Makelaardij
Indien u vragen heeft of u wilt een bezichtiging inplannen, dan kunt u gebruik maken van het formulier hiernaast. Er zal daarna op korte termijn contact met u worden opgenomen.
Contact opnemen
Ben Straatman Makelaardij
Welkom bij Ben Straatman Makelaardij, een eigentijds Kempisch makelaarskantoor. Of je nu op zoek bent naar een makelaar om je woning te verkopen, je droomhuis gevonden hebt, of hulp nodig hebt bij gedeeltelijke zelf-facilitatie van de aankoop of verkoop, bij ons ben je aan het juiste adres. Wij bieden de professionele ondersteuning en zekerheid die je zoekt.
Mijn naam is Ben Straatman, oprichter van Ben Straatman Makelaardij. Geboren in Eindhoven en sinds mijn zevende woonachtig in Reusel - een echte Kempenaar dus. Getrouwd met Sanne en trotse vader van vier kinderen (Neel, Mette, Vik en Nand), woon ik met mijn gezin in het prachtige buitengebied van Reusel. Naast mijn werk als gedreven makelaar, ben ik graag thuis bij mijn gezin, sport ik wanneer het kan, luister ik naar muziek en geniet van ons gezinsleven.
Wil je meer weten over wat wij voor je kunnen betekenen? Ik kom graag langs om de mogelijkheden te bespreken, of nodig je uit voor een kop koffie op ons kantoor.
Nieuwste reviews
-
Ten Einde 17
Ben is een hele prettige, deskundige makelaar en tevens fijn in de omgang. Ons huis was binnen no time verkocht!
-
Luuk Huijbregts
Ben is een hele prettige, deskundige makelaar en tevens fijn in de omgang. Ons huis was binnen no time verkocht!
-
de Speelman 27
Ben heeft ons geweldig geholpen! Deskundig, enthousiast en met goed advies dacht hij overal in mee. Altijd bereikbaar en alles soepel gerege...